成功案例

北京建工丰台新项目提速 潘杰将用

作者:365bet网址 时间:2025/11/20 点击:

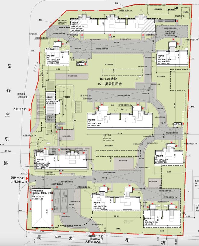
北京金申徐地11月17日,丰台岳各庄DC-L01地块项目规划设计方案公布。项目占地面积21700平方米,总建筑面积约84500平方米,其中地上面积58000平方米,地下2.65平方米。建筑高度55.35米(最高),容积率2.66,绿地率30%。规划8栋住宅,共440套,户均建筑面积约130平方米。除东南角8号楼为10层平房外,其余均为14-18层小高层。该地块于9月5日出让,被北京市城市建设开发+住房城乡建设+建筑工程联合体以底价29亿元收购,相当于楼面价5万元/㎡。之前总体方案公布,案件正式名称公布:嘉塔净月。怀柔的一名建筑工人贾茨云熙成了姐夫。岳各庄的新项目继续使用“加塔”字头,一来是为了明确施工管理,二来也将享受加塔印章的知名度。家茨云熙无疑是今年郊区市场的热门单品。该土地于5月获得,并于9月底推出。不到两个月的时间,就完成了203套网上签名,业务确实流畅。节奏太快,以至于很多人都记不住案件的名字了。该项目的规模确实有限,共有7栋平房、224个单位,面积超过20,000平方米。按照婚均成交价3.94万/㎡计算,销售总额近8.67亿元,对于挽救建工不断下滑的房地产业绩贡献有限。在第一个今年上半年,北建地产营收和净利润“逆转”,营收39.10亿元,同比下降41%;净利润下降1.08亿元,降幅超过70%。截至6月底,北建地产归属于母公司所有者的净利润为-2719.57万元。 01 在怀柔,北京建工地产还有一个解决“老问题”的项目:净月林西,距嘉塔云西8公里。该项目总建筑面积近32万平方米,共计1308套。自2021年9月推出以来,累计网上签约449套,出让率为34%,成交均价约3.15万元/平方米,成交金额12.84亿元。是北京建工地产耗资45亿元拿下的大型项目。征地以来近五年来,地价通胀率一直低于30%。据北京建工地产2025年一期中期票据招股说明书显示,京悦林西预计总投资值为77.2亿元。截至2024年9月末,已投入45.43亿元,占公司存货总额的24.53%。贾慈云熙的“好房子”特质对林景月的影响太大了。南向双阳台+北向平台设备+侧飘窗是负产品共享率ng利用率超过100%。当这个口子打开之后,后续的项目也会纷纷效仿,景越和林夕想要摆脱只会更加困难。嘉茨云熙和净月林熙的开发主体均为北京建邦怀景房地产,其法人及管理人为秦星。对于北建地产董事长潘杰来说,除了怀柔项目,还有海淀,已经是库存充足,让人担心。一个是嘉华天君,一个是西半壁店之地。均是与保利发展共同规划、投入巨资的大型项目。嘉华天君自年初开业以来流量一直不温不火,只能通过调整监管“自救”;半壁店项目在拿地5个月后就报批了。总体方案公布已经一个多月了,还没有进一步的进展。据传,半壁店项目由合作伙伴保利推动实景开业。无论消息真假,10月底,也就是半壁店项目总体方案公布仅一周后,建工地产就将其在项目公司的30%股权全部质押给保利。半壁店项目土地费为45.45亿元,占30%,对应份额超过13.6亿元。资金撤回是基因集力投资新丰台项目。嘉塔净月的主体开发主体北京建兴丰汇置业有限公司于9月23日成立,注册资本29亿元。城建开发持股48%,中国建工集团旗下北京建邦景瑞房地产开发有限公司持股42%,住房城乡建设子公司北京金地房地产开发有限公司持股10%。项目公司法定代表人、董事长为李峰,总经理为李景坤,均为市建设厅管理班子成员。承接该项目的施工工程师最大的优势就是熟悉当地市场。嘉茨净月以西不到2公里处,就是西华台建设项目。将于2023年上市。拥有437台,为标准液体。网上签约平均价格为81.500/平方米。其在丰台市场的表现可圈可点。吉马景悦目前使用的是西华台的售楼处(门已改),在网上户型上也得到了西华台的经典设计,相当于“延续了成熟的产品线”。按照目前的发展,吉摩净月仍有望在今年内进入市场,助力建筑行业。 02 建筑呈点状排列,南北距离超过50米。但东西相邻的对角线距离不够,低层房屋会受到一定程度的遮挡。最近的一根也只有2米多长。站在7号楼的南阳台和8号楼北侧的设备平台上应该可以摸到。 有两层高架:北排1#楼两端的单元,以及南排6#楼整个一层。门的德。左翼景观门装饰结构复杂,与下沉式大庭院相连。三个户外活动区分布在社区中心广场周围。建筑西南角配套有开关站、配电室、分界室,屋顶呈坡形。总体平面图已被曝光,外立面、会所等的平面图草图和效果图已在网上泄露。综合来看,大体可以确定该项目面积段为:99㎡/116㎡/136㎡/155㎡/176㎡,三至四房,定位有所提升。空闲面积不小,整体住房收购率超过90%。大多数房屋都有宽阔的朝南阳台和朝北的公用平台,有些末端单元是凸窗。大门南北两侧的3#、6#楼,西大门采用阳台+转角的组合r 窗口。该建筑起始面积为99平方米,三间卧室和两间浴室位于东南角别墅的8层。这种房子的好处是它是侧屋。如果是中央房屋,采光就会比较困难。由于房型狭长,进深宽比接近2,虽然南北都有窗户,但中间部分功能空间过多,导致房间通透度一般。进入前门是开放式厨房+公共浴室+房间等,朝南两侧宽敞,客厅+主卧套房,双阳台,视觉进深超过1.5米。北侧有两间小卧室,其中一间是免费发送设备的平台。 03 家茨净月位于三环与四环之间,靠近海淀,但不具备学区优势。南侧不远处是北京市第十一中堂实验学校。今年,高中部将招收第一届学生。周边生活设施齐全,有中国人民解放军总医院第五医疗中心、千禧购物中心、银座和谐广场、万丰公园等。缺点是距地铁10号线六里桥站步行约2公里,轨道交通不友好。不过自驾交通还是方便的。距四环路至坎鲁然不到1公里,东距三环路2公里多一点,北至莲石路,南至京港澳高速。距离约1公里,适合有车一族购房。丰台土地大部分地区还有一个通病,就是没有铁路。项目北侧为北京西站n 车厂,噪音是需要考虑的负面因素。另外,城市界面一般,住宅建筑往往老旧破旧,多为经济适用房和公房。次新二手房紫辰园挂牌价8万+,保利和光怡景则能达到9万/㎡。西华台楼面价5.28万/㎡,网签均价8.15万/㎡。嘉特景悦的售价低了5万元/㎡,定价仍有很大空间。目前吹风机价格为7.5万元/㎡。这两个项目是丰台西四环周边的新建项目。它们靠近海淀,可以吸收从地理区域溢出的购买力。综合来看,净月的容积率、高度、地形均优于西华台。随着“好房子”公共区域设计的加入以及阳台等空间的拓展,产品的能力也将得到提升。得到显着改善。 特别声明:以上内容(如有则包括照片或视频)由自媒体平台“网易号”用户上传发布。本平台仅提供信息存储服务。 注:以上内容(包括图片和视频,如有)由网易HAO用户上传发布,网易HAO为社交媒体平台,仅提供信息存储服务。

吃瓜爆料每日大赛-吃瓜黑料视频永久地址-421页无删减劲爆吃瓜PDF

客服热线:400-123-4567

邮箱:[email protected]
地址:广东省广州市天河区88号

首页
电话
短信
联系